로그인

간편회원은 볼 수 없습니다.
회원정보를 입력해주세요.

회원정보 수정
신고하기

매물 번호 : 10444

상세설명

신사동 꼬마빌딩 급매 올근생 소형빌딩 40억

 

강남구 신사동 위례신사선 을지병원역 개통예정지 역세권 도보 2분거리

 

매매가 40억, 현보증금 1억 월 800만

리모델링 완료된 올 근생 소형건물

 

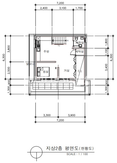
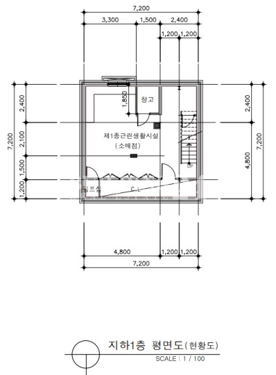
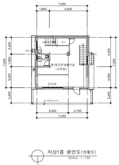
지상 2층/ 지하1층, 3종일반주거지역

대지면적 87.4㎡(26.44평), 건축면적 61.25㎡(18.53평), 연면적 110.85㎡(33.53평)

주차 1대, 1975년 1월 25일 준공, 2022년 03월 올리모델링완료

3종주거지역으로 증축 및 신축시 시세차익 가능

통사옥사무실, 카페, 쇼룸 등 다양한 임차수요 많은 강남 신사동

 

서울마당부동산중개법인(주) 010-9294-7779

   

서울마당부동산중개법인(주)

(대치동, 선릉역 1번출구)
대표자 안용희
부동산등록번호 제11680-2021-00365호
전화 010-9294-7779, 대표전화 02-566-5556
연락처를 남겨주시면 연락드리겠습니다.
개인정보 수집이용 동의 [보기]
  • 자료가 없습니다.
  • 자료가 없습니다.

인근 매물