로그인

간편회원은 볼 수 없습니다.
회원정보를 입력해주세요.

회원정보 수정
신고하기

매물 번호 : 10803

상세설명

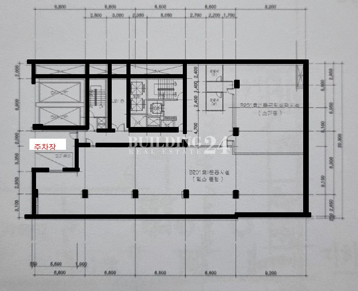
교회임대 창고 공유창고 임대

 

강동구 길동 지하2층 전체임대 강동역 도보3분 천호대로변 접

교회입점가능 창고 공유창고입점추천

 

보증금 1억2천만 월임대료 300만 관리비 200만 빠른입주가능

 

전용면적 466.32㎡(141.1평)

15층중 지하 2층전체

임대료 싼 지하층으로 지하까지 카리프트로 진입가능

지하2층 일부 주차장으로 사용중

 

사용승인일 1993.09.28. 총주차 56대, 승강기 3대, 주출입구방향 남향

 

교회임대문의 010-9294-7779

 

서울마당부동산중개법인(주) 대표공인중개사 안용희

서울특별시 강남구 선릉로 90길 10, 샹제리제센터 B동 507호(대치동)

문의전화 010-9294-7779

등록번호 11680-2021-00365

 

서울마당부동산중개법인(주)

(대치동, 선릉역 1번출구)
대표자 안용희
부동산등록번호 제11680-2021-00365호
전화 010-9294-7779, 대표전화 02-566-5556
연락처를 남겨주시면 연락드리겠습니다.
개인정보 수집이용 동의 [보기]
  • 자료가 없습니다.
  • 자료가 없습니다.

인근 매물